Villa Roc E Fiore
Preview only — see all hotel photos
See all 28 photos
Show hotel on map
Villa Roc E Fiore
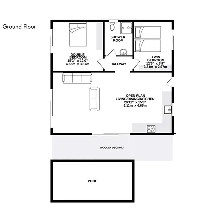
Located only 550 metres from Ghjunchitu Beach, the 1-bedroom Villa Roc E Fiore Corbara includes a terrace with views of the pool. Offering a private swimming pool, this Corbara villa invites guests to visit the Guy Savelli Private Museum, located about a 10-minute ride away.
While staying at the accommodation, you'll be within a 2-km distance of Plage de Bodri Beach and 4.1 km from the Church of the Annunciation. Villa Roc E Fiore is situated approximately a 15-minute ride from such cultural venues as the Village of Occi.
Bathroom facilities at this accommodation also include a separate toilet and a shower. Toiletries and bath sheets are included to enhance your comfort.
Villa Roc E Fiore offers a fully-equipped kitchen with all necessary appliances, like an electric kettle, a refrigerator, and kitchenware. Guests can dine at Junquidou restaurant, located fairly close to the Corbara accommodation. Saint Catherine airport can be reached in a 44-minute drive from the Corbara property.
Amenities
Main Features
- Wi-Fi
- Swimming Pool
- Air conditioning
- No pets allowed
Facilities
- No smoking on site
- Wi-Fi
- Parking
- Safe deposit box
- No pets allowed
- Key access
- Heated swimming pool
- Outdoor swimming pool
- Beach umbrellas
- Garden area
- BBQ facilities
- Air conditioning
- Terrace
- Garden furniture
Policy
Map
Local Attractions
Airports
- Saint Catherine (26 km)